Klimatisierte Fläche für individuelle Ansprüche – sofort nutzbar
69126 Heidelberg, Bürohaus zur Miete
Kontaktdaten
-
NameTeam Vertrieb
-
FirmaKRAUS IMMOBILIEN GMBH
-
AdresseAlte Glockengießerei 9
69115 Heidelberg -
E-Mail
-
Tel.
-
Fax+49 6221 4799-60
Objektdaten
-
Objekt ID864/BF16/Eh3/Buero
-
ObjekttypenBüro/Praxis, Bürohaus
-
Adresse69126 Heidelberg
-
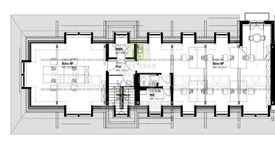
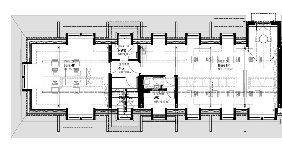
Bürofläche ca.144 m²
-
Zimmer2
-
Schlafzimmer0,0
-
Badezimmer0,0
-
Baujahr1937
-
Verfügbar absofort
-
Miete pro m²18,00 EUR
-
Nebenkosten580,00 EUR
Objektbeschreibung
In der Heidelberger Südstadt auf den Konversionsflächen von Campbell Heidelberg ist ein neues Quartier zum Wohnen, Lernen und Arbeiten entstanden.
Innerhalb des Quartiers (www.campbell-heidelberg.de) befindet sich auf dem Baufeld 16 ein denkmalgeschütztes Gebäude mit drei Einheiten, wovon zwei bereits an eine Kita und ein Eiscafé vermietet sind. Die dritte Einheit im 1. Obergeschoss umfasst ca. 144,00 m². Die Dachschräge, die Dachflächenfenster sowie die sichtbaren Holzbalken schaffen eine schöne Atmosphäre.
Zur Ausstattung der Gewerbefläche gehört ein Bodenbelag, Beleuchtung, Röhrenheizkörper, Klimageräte, Entlüftungsanlage und EDV-Verkabelung. Gerne stimmen wir sonstige individuelle Wünsche mit Ihnen ab.
Direkt am Gebäude können Stellplätze angemietet werden. Weiterhin steht eine öffentliche Garage auf dem Areal zur Verfügung.
Haben wir Ihr Interesse an dieser Fläche oder dem Quartier geweckt? Gerne senden wir Ihnen unsere ausführliche Broschüre mit dem Grundrissplan und stehen Ihnen zur Beratung oder für ein Angebot weiterer Flächen zur Verfügung.
Schreiben Sie eine Mail mit Angabe Ihres Namens, Anschrift und Telefonnummer oder nutzen Sie direkt das Kontaktformular.
Wir freuen uns über Ihre Kontaktaufnahme!
Lage
Mit Campbell Heidelberg ist ein Quartier zum Wohnen, Lernen und Arbeiten entstanden – genau dort, wo in der Heidelberger Südstadt die United States Army in den vergangenen Jahrzehnten auf dem Gelände der ehemaligen Großdeutschlandkaserne ihr Quartier hatte.
Der besondere Clou ist das Herzstück des neuen Quartiers: DER ANDERE PARK. Auf rund fünf Hektar verbindet dieser als Projekt der internationalen Bauaustellung Heidelberg (IBA) verschiedene Orte des Quartiers durch Freiräume und Grünflächen – und dient damit der Entspannung und Erholung unmittelbar vor der Tür.
Ob von nah oder fern, ob individuell oder öffentlich – in Campbell Heidelberg haben Sie eine hervorragende Verkehrsanbindung. Sie erreichen vom Heidelberger Hauptbahnhof das Quartier gut mit dem öffentlichen Personennahverkehr per Straßenbahn und Bus, dessen Haltestelle sich direkt auf dem Areal befindet. Mit dem Auto kommen Sie über die Ausfahrt Heidelberg-Schwetzingen der A5 und dann via Römerstraße nach Campbell Heidelberg.
Provisionsfrei, urban, attraktiv:
- Großzügige Begegnungs- und Freiflächen mit hoher Aufenthaltsqualität in den Pausen
- Individuelle Gewerbeflächen für Büros, Praxen, Ladengeschäfte und weitere Nutzungen
- Moderner und günstiger Wohnraum vom Kleinstappartement bis zur Fünfzimmer-Wohnung
- Vitalquartier mit Arztpraxen, Physiotherapie und diversen medizinischen Angeboten
- Kultur- und Bildungseinrichtungen direkt im neuen Quartier
- Optimale Verkehrsanbindung für individuelle und öffentliche Mobilität
- Hervorragende Infrastruktur mit Kinderbetreuung, Nahversorgung und Gastronomie
Die ungefähre Position der Immobilie auf Google Maps ansehen (Link auf externe Website)











